您好!欢迎您访问"hth官方平台 "企业网站!

24小时服务热线

18962209715

公司新闻

青岛HGO-ZX3020/ZXL测量显微镜

分类:公司新闻 发布时间:2025-09-02 704次浏览

随着半导体制造工艺的不断提升,精密检测已成为行业核心。测量显微镜凭借操作简便高效的实用特性、强大的精准测量性能,已成为芯片制造与封装中不可或缺的关键检测设备。

HGO-ZX3020/ZXL青岛测量显微镜

一、产品功能

该设备主要用于半导体晶圆、封装,手机显示模组及有关产品的观察及尺寸测量。将工件放于显微镜下,使用不同的物镜对产品进行观察,对需要测量的位置使用带光栅的高精密移动平台结合数据处理软件进行尺寸测量,使用数字相机进行实时影像处理、观察以及拍照,实现对产品的尺寸以及外观检查。

二、系统构成

全套设备由以下几部分组成:

1、HGO-ZX3020/ZXL青岛测量显微镜

2、IMAS2000专用测量软件

3、630万像素USB3.0高速相机

4、PC电脑

三、技术参数

1、HGO-ZX3020/ZXL青岛测量显微镜

1)显微镜类型:测量显微镜;

2)放大倍数:放大50、100、200、500倍;(选配1000倍)

3)光源类型:5W白光LED灯;

4)视场数:22mm;

5)照明方式:反射光,科勒照明/透射光普通照明;

6)观察方法:明场;

8)物镜转盘:5孔物镜转盘;

9)物镜类型:平场消色差物镜;

10)载物台结构:三层机械结构高精度移动载物台

11)测量行程:X 轴 300mm, 丫 轴 200mm, Z 轴 175mm。

12)测量精度:3+L/200um。

13)外形尺寸长*宽*高:720*700*720mm

14)重量:100Kg

15)承重:20Kg

2、IMAS2000测量软件

1)操作简便的介面

HGO-IMAS2000测量软件操作截面

2)实时影像观察

3)实时图像抓取

4)二维几何尺寸测量

标注图标功能

5)测量结果报表输出

6)多分辨率切换

7)景深合成和拼图功能

8)智能十字线

3、USB3.0高速数字相机;

1)630万有效像素

2)1/1.8"CMOS芯片,单个像素面积2.4X2.4um

3)半导体制冷

4)采用OTC真彩还原技术,具有的色彩还原效果;

5)高灵敏度,较短曝光时间10ms;

6)高速USB3.0数据传输;

7)标准C-mount视频接口。

4、高精度载物台

1)XY 行程300X200mm

2)平台光栅显示精度值0.5um

3)传动方式:手动

4)高精密交叉滚子导轨:特殊钢材经热 处理加硬到HRC60-62度,专业导轨磨床研磨加工而成,稳定性高,耐磨能力强。

高精密交叉滚子导轨

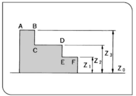
5、Z轴测量

1)Z轴光栅显示精度值0.5um 

2)传动方式:手动

3)测量原理

通过对不同焦面进行聚焦,得到不同焦面的高度差,从而得到所需测量的高度

测量原理

4)辅助对焦装置保证重复性精度

辅助对焦装置

6、PC电脑

计算机:戴尔品牌

操作系统W11处理器芯片15-12500,内存16G,1TG固态硬盘,24寸戴尔显示器HDMI高清1920*1080。

四、配置清单

光学系统

无限远光学系统

观察头

5-35°角度可调像,无限远铰链三通观察筒,瞳距调节:50-76mm,两档分光比100/0或0/100

目镜

高眼点大视野平场目镜PL10X/22mm

转换器

内定位5孔转换器

物镜

5X平场消色差物镜NA0.15,WD10.8mm

10X平场消色差物镜NA0.30,WD12.2mm

20X平场消色差物镜NA0.30,WD4mm

50X平场消色差物镜NA0.45,WD7.8mm

100X平场消色差物镜NA0.45,WD2.1mm。(选配)

测量显微镜主体

手动测量平台(行程300mmX*200Y)mm;带数显器带电动调焦手迈;样品高度17mm;带5WLED透射照明(绿色)。

照明

反射照明器,带滤色片插槽与偏光装置插槽,带5WLED 灯源,亮度可调(含托架适配器)

辅助聚焦模块

绿色点光源,亮度可调节,带独立控制器。

相机

像素 630 万;3072(H)x2048(V);帧率:30fps ;接口 : USB3.0 ;图像传感器: CMOS (彩色)

摄像接口

0.65XCTV、C型接口、可调焦

PC

戴尔品牌商用电脑,操作系统操作系统W11处理器芯片15-12500,内存16G,1TG固态硬盘,24寸戴尔显示器HDMI高清1920*1080

软件

IMAS2000精密测量软件

标尺

0.01mm

五、第三方检测机构精度认证书

提供具有授权相关检测资格的第三方检测机构精度认证书。

产品校准证

六、操作环境

1、海拔:更高2000米

2、环境温度:5℃到40℃(41℉到104℉)

3、更大相对湿度:

温度达到31℃(88℉)时为88%,温度达到34℃(93℉)时线性降低为70%

温度达到37℃(99℉)时为60%,温度达到40℃(104℉)时为50%

4、供电电压波动:不超过正常电压的10%

5、污染级别:2(按照IEC664)

6、安装电压过高分类:Ⅱ(按照IEC664)

七、安装调试

1、到货后3个工作日内,派人到现场安装调试完毕。

2、按照合约清单对所发货物数量以及型号进行清点,并双方在收货清单上签字。

3、在设备安装调试完成后,乙方负责安排对甲方的使用人员进行现场使用讲解,确保甲方人员能独立操作,并能进行日常维护和简单的故障分析及排除。

4、甲方需确保设备所需的工作环境符合以下要求:

环境温度:10-30℃,湿度:50%~85%,电源:220VAC (+/-10%),50Hz 

5、安装后双方签署安装确认书。

6、用户提供具有抗震、防震功能的工作台(安装场地如有明显震动的情况下)。

八、质量保证和售后服务

1、产品质量:保证符合产品质量验收标准,性能指标符合产品说明,产品运行稳定可靠;

2、一年保修:对仪器提供12个月保修(以验收之日算起);保修内非人为原因造成的故障,实行免费维修维护,对于用户使用不当原因造成的故障,免收除配件运输费用之外的其它技术服务费用。

3、保修期后:对所提供的仪器有偿维护,并对配件在价格上给予一定额度的优惠;在仪器保修期外,如需维修,供方收取配件费、运费和更低维修服务人工费;

4、快速反应:承诺在收到用户维修要求后,于24小时内作出电话响应,48小时内派专员赶到现场;承诺长期提供免费技术咨询。


版权所有:hth官方平台 苏ICP备18008002备 技术支持:苏州荣邦
hth官方平台 主营显微镜半导体显微镜金相显微镜测量显微镜工业显微镜xml地图 htm地图 txt地图
×
Baidu
map